standort
|
parken
|
läden
|
praxen, kanzleien, büros
|
wohnungen
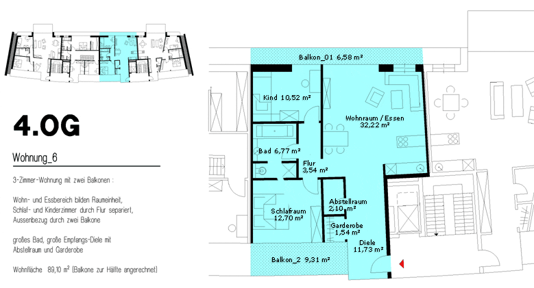
drittes und viertes obergeschoss / 3-zimmer-wohnung
wohnung:
01
|
02
|
03
|
04
|
05
|
06
|
07
|
08